2033 Hillman Way, Roebuck, SC 29376
- 3 beds |
- 3 baths |
- 1,562 sqft
Town Home
Built in 2025
2,614sqft lot
1 car garage
$128/sqft
Listed 20 days ago
Property Description
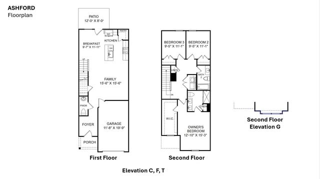
Discover the perfect balance of affordability and elevated living at Trenton Place, a thoughtfully designed community just minutes from Downtown Spartanburg. USDA eligible! Conveniently located near major employers with easy access to I-26 and I-85, Trenton Place offers unmatched convenience and comfort. This move in ready, 2-story townhome features an open-concept floor plan with 3 spacious bedrooms, 2.5 bathrooms, and a one car garage. Enjoy modern finishes such as hard surface flooring in the main living areas, elegant quartz countertops, white shaker cabinets, a gas stove, a large kitchen island, a huge corner pantry and included refrigerator. This home also includes whole house blinds. Step into the primary suite, where you’ll find a beautiful bath with sliding glass shower doors, a dual vanity, and a generous walk-in closet that is a must see. Entertain with ease on your large private rear patio, complete with fencing on each side for privacy – perfect for gatherings and quiet evenings alike. At Trenton Place, you’ll also enjoy maintenance-free living with landscaping and lawn care included. Planned amenities such as a playground and outdoor firepit area will create the ideal setting for neighbors, friends, and family to connect. This is more than a home—it’s a lifestyle. There’s never been a better time to explore Trenton Place and make Spartanburg your new home. Schedule your tour today! ***Limited time buyer incentives including up to 100% Financing with down payment assistance***
- Listing Status:
- Pending
- Listing Office:
- Veranda Homes, LLC : 864-837-2632
- Listing Agent:
- John Dinnen : 864-837-2632
- MLS ID:
- 331218

- General: Attic Stairs PulldownWalk-In Closet(s)Ceiling - SmoothSolid Surface CountersEntrance FoyerOpen FloorplanWalk-In Pantry
- Rooms: Breakfast Area
- Appliances: DishwasherDisposalMicrowaveGas OvenSelf Cleaning OvenGas RangeRefrigerator
- Laundry: 2nd FloorLaundry Closet
- Basement: None
- Flooring: CarpetLaminateVinyl
- A/C: Central AirHeat PumpZoned
- Heating: Forced AirGas AvailableGas - Natural
- Fireplace: Fireplaces: 0
- General: Sprinkler System
- Style: Craftsman
- Parking: AttachedGarage Door OpenerDriveway
- Roofing: ArchitecturalComposition
- General: StoneVinyl SidingTwoSlab
- HOA Amenities: Common AreasSee RemarksStreet LightsPlaygroundLawnPrivate RoadsCommon AreaElectricityLawn ServiceSee RemarksParkingStreet LightsTermite Control137.0Monthly
- Originating MLS: spartanburg
- School District: 6 Sptbg Co
- County: Spartanburg
- Driveway: Paved-Concrete
- Zoning: 6-29-0064.12
- Water: Public
- Sewer: Public Sewer
- Source: spartanburg
This listing courtesy of John Dinnen, Veranda Homes, LLC
Monthly Payment
- Principal & Interest $
- Property Taxes $
- Home Insurance $
- VA Funding Fee $
Location
Schools Nearby
Roebuck Elementary School
2401 E Blackstock Rd, Roebuck, SC, 29376
Grades PK-5
1.40 miles away
L. E. Gable Middle School
198 Otts Shoals Rd, Roebuck, SC, 29376
Grades 6-8
0.49 miles away
Dorman High School
1050 Cavalier Way, Roebuck, SC, 29376
Grades 9-12
1.04 miles away






